Árukészlet elrejtése Áruválaszték
Kapcsolatok

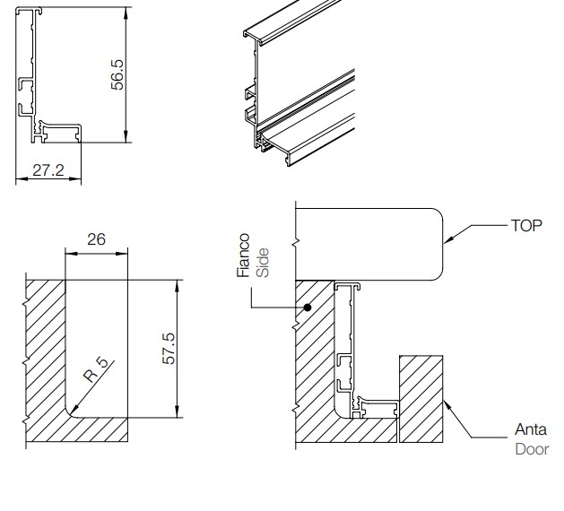
TULIP Gola ajtó J profil LED-del 4,1m fehér félfényes

Árukészlet kód 504525
Raktári
További információ
A termék árát a Démos24Plus portálra való bejelentkezés után tudhatja meg.
Vásárlás
Jel
Tulip
Termékcsoport kód
104006
Egység (ME)
db
Kiszerelés
1 db
Csomagolás
25 db
Leírás és paraméterek

Gola J horizontal profile for application under the worktop with the possibility of inserting a Led strip. The use of the Gola profile replaces the classic type of rail handle and thus provides the kitchen with a modern handle-free look. The led strip is not included in the delivery. We recommend Led strip with a width of 8mm, max. 10mm. It is possible to insert any laminate into the profile for aesthetic compatibility with the interior and furniture with a thickness of max. 1mm. It is necessary to purchase a diffuser (cover) for the led strip for the profile

Kapcsolódó árukészlet

Megnevezés Cikkszám Elérhetőség Kiszerelés/
csomagolás
TULIP Gola burkolat ajtó J és C  profilhoz LED-del 4,1m TULIP Gola burkolat ajtó J és C profilhoz LED-del 4,1m 504528
Raktári
További információ
1 db / 25 db
Cikkszám
504528
több kevesebb